Описание
Жилой комплекс New York City — это квартал бизнес-класса в южной части Бишкека, вдохновленный архитектурой Нью-Йорка начала XX века.
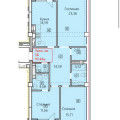
Продается трехкомнатная квартира. Под самоотделку.
Планировка: кухня, гостиная, две спальни, два балкона, кладовая, два полных санузла и гостевой.
Высокие потолки, панорамные окна, придомовая территория.
Фасады выполнены в стиле стримлайн модерн с динамичными линиями.
Инфраструктура «Бродвей»: На территории комплекса предусмотрена собственная аллея с фонтанами, зонами для прогулок и коммерческими помещениями (магазины, кафе, офисы).
Благоустройство: Концепция «двор без машин», подземный и гостевой паркинги, современные детские площадки из экологичных материалов и воркаут-зоны.
Экология: Расположен в верхней части города рядом с парком Асанбай, что обеспечивает более чистый воздух и вид на горы
Кыргыз Недвижимость
ID: 84547






