ID объекта : 82363
Тип: Элитка
Этаж: 9/16
Цена: $92 000
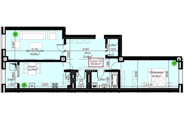
Размер объекта: 80.26 м2
Комнат: 2
Cостояние: Строящийся ПСО
Коммуникации:
Газ;
Адрес: Анкара/Виноградная
Район: АЮ Grand
Описание
Продаётся 2-комнатная квартира
в элитном ЖК “Royal Garden” от СК: Royal Construction
📍 Район: Бишкек Арена (Аю Гранд)
Площадь: 80.26 м²
Этаж: 9 из 16
Планировка: Сквозная окна смотрят на запад и во двор
Состояние: ПСО (строящийся)
Все Коммуникации центральные, отопление: индивидуальное газовое (поквартирное)
Документы: ДДУ через госрегистр (юридически чисто)
Цена: 92.000 $ (~8050000 сом)
Кыргыз Недвижимость
ID: 82363






