Элитка, ком, 109.6 м2, этаж 1/2, Сост: Строящийся ПСО

$214 000 / 18 714 300сом
, горький

ID: 69317
В понравившиеся
Срочная продажа
Фото
Карта

Обзор

  • Опубликовано:
  • 23.10.2025 16:21
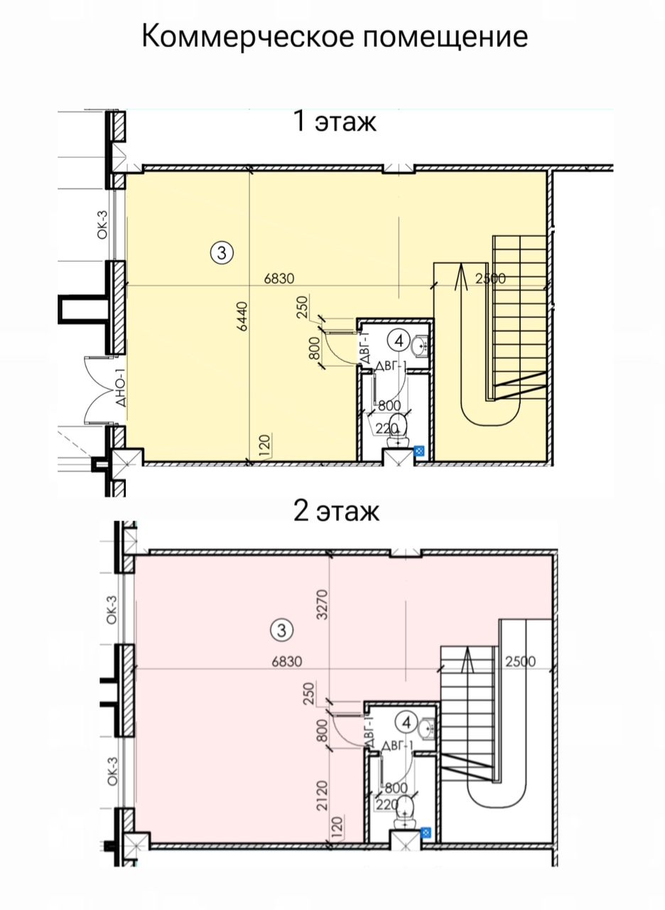
  • 109.6 м2
ID объекта : 69317
Тип:
Этаж: 1/2
Цена: $214 000
Размер объекта: 109.6 м2
Комнат:
Cостояние: Строящийся ПСО
Коммуникации: Автономное отопление;
Адрес: горький
Район: Физприборы

Описание

❗️*Продаётся❗️Коммерческое помещение в ЖК “Capital Towers” в Бишкеке*

Площадь: 109,6 кв.м(м2)                       

Этаж: 1 и 2

Блок А

Срок сдачи 3 квартал 2025 года

Застройщик: СК Легенда Девелопмент,

📍Адрес: Радищева 6 (Vefa|Вефа центр)

💯Участок с красной книгой, полным пакетом разрешительных документов, а также все центральные коммуникации. 

‼️Идеальное расположение в самом центре города‼️

🚶🏻‍♂️Большая проходимость

✅Фасад из ультратонкого итальянского керамогранита

✅Панорамные окна из алюминия

✅Двухуровневый подземный паркинг

✅Видеонаблюдение и охрана 24/7

✅Подключение ко всем коммуникациям

Отлично подходит для :

🛒магазина

☕️кофейни

💅 Салона красоты

👨🏻‍💻Офиса.

 

Кыргыз Недвижимость
ID: 69317

Похожие объявления

Об этом объекте знает всё:

Айданбек Акматов

Свяжитесь со мной

Запланировать показ?