ID объекта : 62846
Тип: Элитка
Этаж: 13/14
Цена: $195 500
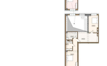
Размер объекта: 178 м2
Комнат: 4
Cостояние: Сдан ПСО
Коммуникации:
Адрес:
Район: Асанбай мкр.
Описание
🏙️ ЖК "New York City" — 4 блок
📍 Асанбай район
📐 178 м² | 4-комнатная | 2 уровня
🏢 Этаж: 13–14 из 14
🔧 Скоро сдаётся | ПСО (предчистовая отделка)
💰 Цена: 1100 $ за квадрат
✨ Просторная двухуровневая антресольная квартира в престижном районе:
Удобная планировка
Панорамные окна
Высокие потолки
Идеальна под дизайнерский ремонт
✅ Современный ЖК
✅ Кирпичный дом
✅ Развитая инфраструктура — школы, сады, ТРЦ, парки
✅ Тихий, комфортный район для жизни
📲 Пишите или звоните — есть подробности и видеообзор по запросу!
Кыргыз Недвижимость
Кыргыз Недвижимость
ID: 62846


.jpeg)


-preview.jpg)
